Проект одноэтажного каркасного дома 68 м². БАРИ
Подробные характеристики
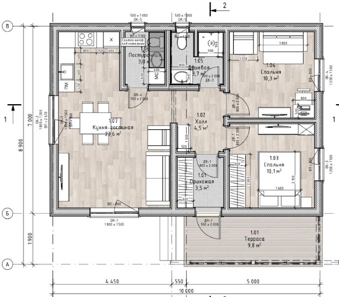
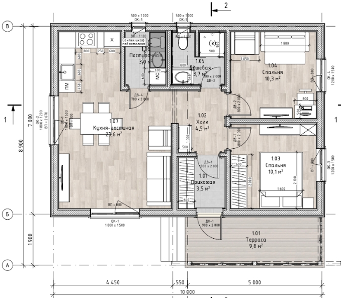
Планировка и зоны
- Терраса: 9,8 м²
- Прихожая: 3,5 м²
- Холл: 4,5 м²
- Спальня: 10,3 м²
- Спальня: 10,1 м²
- Кухня-гостиная: 23,6 м²
- Постирочная: 3,9 м²
- Душевая: 3,7 м²
Конструкция
- Площадь: 68,37 м²
- Несущие стены: каркас 150 мм
- Фундамент: свайный ж/б 150 мм
- Перекрытия: 200 мм по деревянным балкам
- Кровля: металлочерепица
- Высота потолков: 2,7 м
Теплый контур
- Подготовительные работы
- Устройство свайного фундамента
- Сборка силового каркаса дома
- Кровля
- Утепление дома
- Наружная отделка
- Окна, двери входные
- Терраса
Предчистовая отделка
- Обшивка стен имитацией бруса
- Отделка окон, дверей
- Устройство наличника
- Установка дверей межкомнатных
- Устройство стен ГКЛ в с/у
- Отделка стен керамической плиткой
- Укладка керамогранита
- Укладка ламината
- Устройство натяжного потолка
- Установка сантехники
Чистовая отделка
- Обшивка стен имитацией бруса
- Отделка окон, дверей
- Устройство наличника
- Установка дверей межкомнатных
- Устройство стен ГКЛ в с/у
- Отделка стен керамической плиткой
- Укладка керамогранита
- Укладка ламината
- Устройство натяжного потолка
- Установка сантехники
Состав проекта
Что входит в проект дома
Проект дома — это комплект документации, в котором зафиксированы все ключевые параметры здания.
Он позволяет заранее представить, как будет выглядеть дом снаружи и внутри, а также рассчитать,
сколько и каких материалов потребуется для строительства.
При необходимости проект дополняют разделами, которые помогают точнее подготовиться к работам: заранее определить состав и тип инженерных коммуникаций, предусмотреть устройство пожарной и/или охранной сигнализации и другие решения. Проектная документация нужна как в процессе строительства, так и при приемке объекта — для контроля качества работ и соответствия действующим нормам.
При необходимости проект дополняют разделами, которые помогают точнее подготовиться к работам: заранее определить состав и тип инженерных коммуникаций, предусмотреть устройство пожарной и/или охранной сигнализации и другие решения. Проектная документация нужна как в процессе строительства, так и при приемке объекта — для контроля качества работ и соответствия действующим нормам.
Из чего состоит проект?
Типовой проект — это набор чертежей, необходимых для строительства. Как правило, в обязательный состав входят:
-
Архитектурный раздел (АР) — общие сведения и архитектурные решения: поэтажные планы, фасады, основные разрезы, план кровли, ведомости дверных и оконных проемов
-
Конструктивный раздел (КР) — чертежи фундамента и других несущих конструкций, решения по устройству полов и стропильной системе, а также перечень требуемых материалов и их количество
Такой комплект является базовым и включается в проект дома в соответствии с нормативными требованиями. По желанию заказчика проект может быть расширен дополнительными разделами, например комплектом чертежей инженерных систем.
Эскизный проект и полное проектирование
В частном домостроении, особенно при строительстве небольших домов, нередко ограничиваются эскизным проектом.
Однако это только первый этап проектирования и он не является полноценным: в эскизных материалах обычно приводятся общие данные, изображения фасадов и поэтажные планировки.
Полное проектирование с более детальной архитектурной частью предпочтительнее, поскольку даже у простых зданий есть конструктивные особенности и нюансы, которые лучше предусмотреть заранее.
Однако это только первый этап проектирования и он не является полноценным: в эскизных материалах обычно приводятся общие данные, изображения фасадов и поэтажные планировки.
Полное проектирование с более детальной архитектурной частью предпочтительнее, поскольку даже у простых зданий есть конструктивные особенности и нюансы, которые лучше предусмотреть заранее.
Как приобрести проект
Купить в телеграмм боте
Пройдите по в наш телеграм бот @w_island_bot
Выберите проект и совершите покупку
Выберите проект и совершите покупку
Связаться с нами
Позвоните нам по телефону +7
или отправьте письмо на почту Адрес электронной почты защищен от спам-ботов. Для просмотра адреса в браузере должен быть включен Javascript. укажите в письме номер интересующего проекта, ФИО, контактный телефон.
-
проект
КАСА
этажей
1
пл. м2
130
с у
2
спален
3
этажей
1
пл. м2
130
сан.узлов
2
спален
3
-
проект
ОЙКОС
этажей
1
пл. м2
90
с у
1
спален
3
этажей
1
пл. м2
90
сан.узлов
1
спален
3
-
проект
НИЛАЯ
этажей
1
пл. м2
113
с у
2
спален
3
этажей
1
пл. м2
113
сан.узлов
2
спален
3
-
проект
ЛАНДА
этажей
2
пл. м2
171
с у
2
спален
3
этажей
2
пл. м2
171
сан.узлов
2
спален
3
-
проект
МЁККИ
этажей
2
пл. м2
103
с у
2
спален
3
этажей
2
пл. м2
103
сан.узлов
2
спален
3
-
проект
ХЮТТЕ
этажей
1
пл. м2
152
с у
2
спален
3
этажей
1
пл. м2
152
сан.узлов
2
спален
3
-
проект
БАРИ
этажей
1
пл. м2
68
с у
1
спален
2
этажей
1
пл. м2
68
сан.узлов
1
спален
2
-
проект
ТАЛО
этажей
1
пл. м2
101
с у
1
спален
3
этажей
1
пл. м2
101
сан.узлов
1
спален
3
-
проект
ДАР
этажей
1
пл. м2
53
с у
1
спален
2
этажей
1
пл. м2
53
сан.узлов
1
спален
2
-
проект
МИНКА
этажей
1
пл. м2
120
с у
1
спален
2
этажей
1
пл. м2
120
сан.узлов
1
спален
2
-
проект
БЕЙЛИ
этажей
1
пл. м2
120
с у
2
спален
3
этажей
1
пл. м2
120
сан.узлов
2
спален
3
-
проект
МАЙЯ
этажей
1
пл. м2
104
с у
2
спален
3
этажей
1
пл. м2
104
сан.узлов
2
спален
3
-
проект
РУМА
этажей
1
пл. м2
99
с у
1
спален
2
этажей
1
пл. м2
99
сан.узлов
1
спален
2
-
проект
ХЕЙМИЛИ
этажей
1
пл. м2
95,8
с у
1
спален
3
этажей
1
пл. м2
95,8
сан.узлов
1
спален
3
-
проект
ЛАДА
этажей
1
пл. м2
138
с у
2
спален
3
этажей
1
пл. м2
138
сан.узлов
2
спален
3
Каждый проект можно использовать как основу для строительства или адаптировать под свой участок.